Ángel Camacho Estudio de Arquitectura

Vivienda ES4, Madrid

Reforma completa. Proyecto y dirección de obra, 2016-17

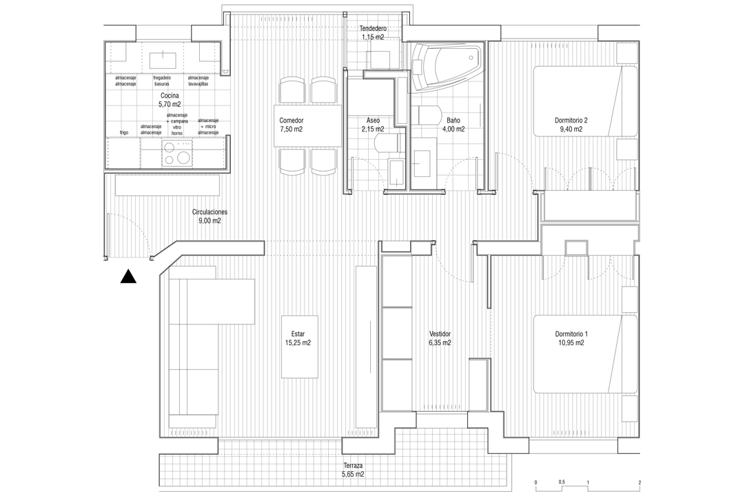
La vivienda se organiza en torno a un espacio principal de recepción, estancia y comedor, pasante y con vistas a las orientaciones E y O. La cocina es semiabierta hacia la zona de comedor. El dormitorio principal cuenta con un vestidor de generosas dimensiones e iluminación natural.