Ángel Camacho Estudio de Arquitectura

Vivienda SA24a, Madrid

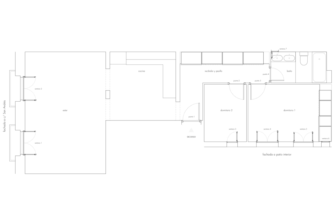
Reforma completa. Proyecto y dirección de obra, 2011-12

En un edificio de 1910 situado en el centro de Madrid se proyecta la renovación completa de una vivienda cuya distribución, acabados e instalaciones se encontraba completamente obsoleta. Aprovechando la posición central del acceso principal, se plantean dos áreas claramente diferenciadas, una a cada lado la entrada. Por un lado, un área vividera con una zona de estar y comedor que ocupa el espacio principal de la casa y que cuenta con dos balcones a la calle, a la que se accede por una amplia cocina pasante que funciona también como comedor informal. Por otro lado, una zona más privada, con un cuarto de baño y dos dormitorios que se abren al amplio patio de la finca. El quiebro del pasillo hacia el área privada frente al acceso inmediato hacia la zona de estar otorga, sin necesidad de una puerta de paso, cierta intimidad a la zona de dormitorios.