Ángel Camacho Estudio de Arquitectura

Vivienda SB22, Madrid

Reforma completa. Proyecto y dirección de obra, 2014

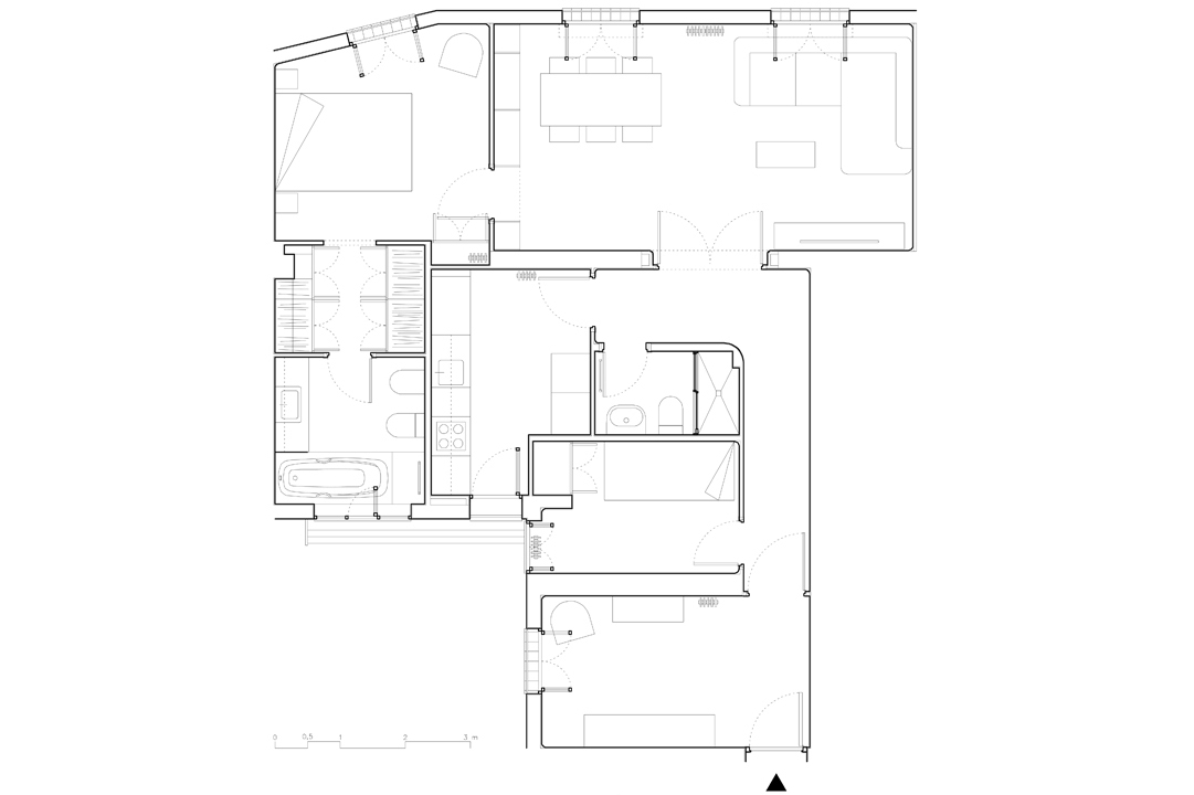
Los propietarios deseaban una vivienda amplia y luminosa con un dormitorio principal con baño y vestidor, y a pesar de que la superficie permitía otras distribuciones, sólamente un pequeño dormitorio adicional para invitados. Deseaban también una casa moderna y funcional pero en la que tuviera una fuerte presencia la huella y el ambiente original del edificio, construido en 1930.
De esta manera, se plantea una vivienda con una distribución atípica: un amplio vestíbulo da paso a un pasillo de distribución desde el que se accede al dormitorio de invitados, a la cocina y a la zona de estar y comedor; a los espacios privados de la vivienda se accede a través de una puerta integrada en un frente de armario en la zona de estar. Desde el el dormitorio principal, donde se han integrado algunas piezas de mobiliario existentes, un vestidor pasante conduce al cuarto de baño, iluminado con luz natural a través de un amplio ventanal.
Se han realizado reproducciones de las puertas de paso originales de la vivienda, además del mantenimiento de escocias en muros y una cuidadosa restauración del parqué para conservar la atmósfera existente en la vivienda antes de la reforma.