Ángel Camacho Estudio de Arquitectura

Vivienda VC31, Madrid

Reforma completa. Proyecto y dirección de obra, 2013-14

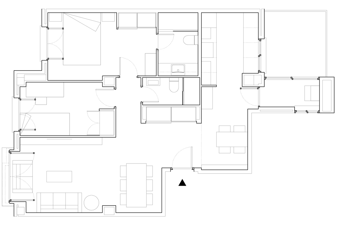
El proyecto buscaba renovar por completo una vivienda con una distribución anticuada y poco práctica, generando espacios diáfanos y aportando claridad y continuidad. Se mantuvieron en la misma posición dormitorios, cocina y baño principal, y se generó un espacio continuo de estancia que abarca las zonas de estar, comedor, acceso y cocina, incorporando también el pequeño balcón existente en la zona de estar. El dormitorio principal se configuró con una zona de vestidor y baño privado; el segundo dormitorio se redujo de tamaño, corrigiendo sus proporciones, y se añadió un segundo aseo a la vivienda.