Ángel Camacho Estudio de Arquitectura

Viviendas VT85, Torrelodones

Nueva planta. Proyecto básico y de ejecución, 2016-18

Con Julio Prado Arquitectos

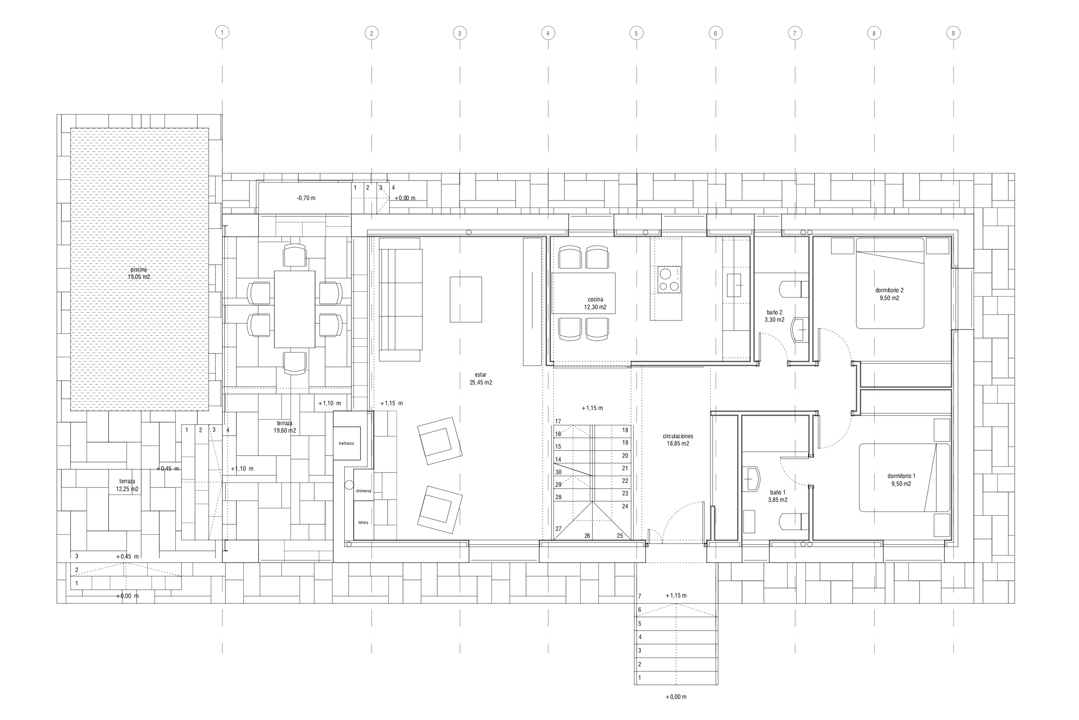
En una zona de viviendas unifamiliares históricas, se procede a la segregación de una parcela de grandes dimensiones para edificar una nueva vivienda con piscina. El lenguaje es contemporáneo, pero se recurre también a materiales y configuraciones existentes en edificaciones de la zona: La piedra natural dialoga con el hormigón visto y el acero. Los muros de mampostería lo son también de carga.

La configuración de la vivienda es lo más sintética posible, un único volumen con cubierta a dos aguas. De cara a la calle muestra su cara más tradicional, muros de mampostería de granito con huecos puntuales, si bien la disposición y tamaño de éstos responde a criterios competitivos actuales. Hacia el jardín y la piscina, sin embargo, el volumen principal se vacía formando un porche de doble altura, que se prolonga hacia el interior en el salón de la vivienda. Una chimenea de grandes dimensiones y que sirve tanto a la terraza como al salón ancla el volumen al terreno. La escalera, abierta hacia la doble altura, conduce hacia el espacio diáfano del bajocubierta.  En planta baja, completan el programa dos dormitorios, dos baños y la cocina.